mieszkania - 57.63 m²

małopolskie, Polska

For Sale

Szczegóły nieruchomości

3-POKOJOWE MIESZKANIE Z BALKONEM | ZAWADA, 18 KM OD KRAKOWA

0% PROWIZJI | BEZ PCC 2% | POD KLUCZ | GOTOWE DO ODBIORU | CENA PROMOCYJNA

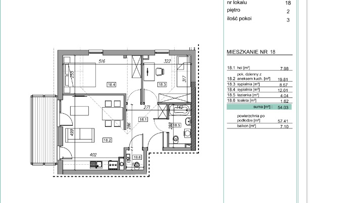
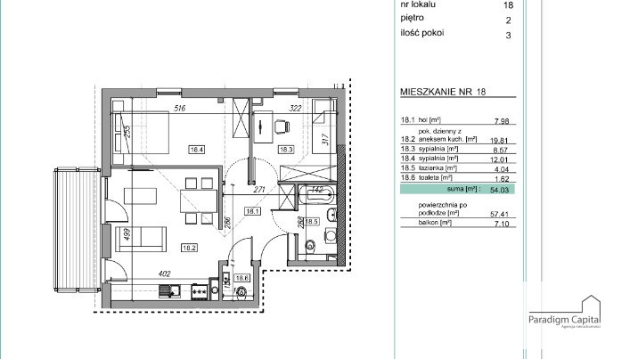
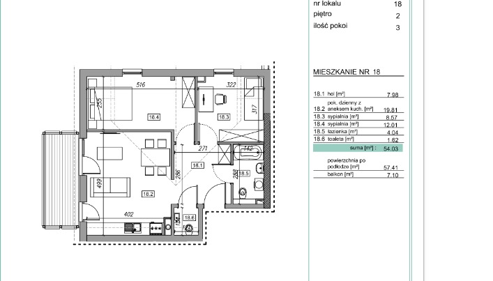
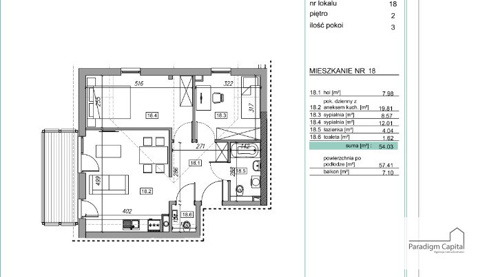
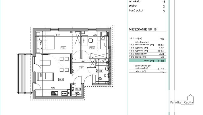
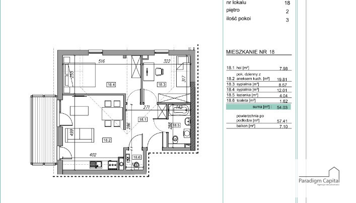
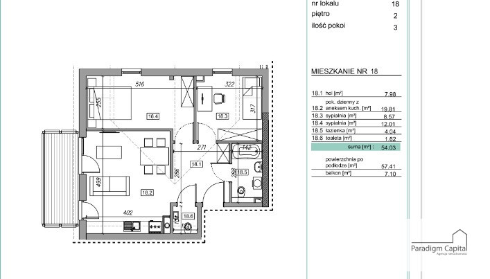
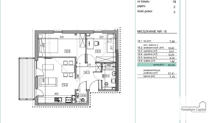
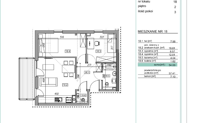
Prezentuję 3-pokojowe mieszkanie o powierzchni 54,03 m² (powierzchnia projektowa 57,63 m²), zlokalizowane w kameralnej inwestycji „Apartamenty na Wzgórzach” w Zawadzie, ok. 18 km od Krakowa i 5 km od Myślenic.

To propozycja dla osób poszukujących gotowego mieszkania blisko Krakowa, w spokojnym, zielonym otoczeniu.

LOKALIZACJA

– Zawada k. Myślenic

– Kraków – ok. 18 km

– Myślenice – ok. 5 km

– Jezioro Dobczyckie – ok. 8 km

– szkoła, przedszkole, sklepy – kilka minut samochodem

MIESZKANIE

– powierzchnia projektowa: 57,63 m²

– powierzchnia po obmiarach: 54,03 m²

– liczba pokoi: 3

– piętro: 2 / 2

– ekspozycja: północno-zachodnia (NW)

– stan: POD KLUCZ – gotowe do zamieszkania

Układ:

– salon z aneksem kuchennym

– dwie sypialnie

– łazienka z prysznicem i WC

– oddzielne WC

– hol

Balkon: 7,10 m²

STANDARD I EKOLOGIA

– ogrzewanie podłogowe

– pompa ciepła

– panele fotowoltaiczne

– energooszczędna technologia

– niskie koszty utrzymania

– budynek z windą

INWESTYCJA

– kameralna, niska zabudowa

– nowoczesna architektura

– spokojne, zielone otoczenie

– miejsca parkingowe naziemne

– prywatny park leśny na terenie osiedla

– strefy rekreacyjne dla mieszkańców

– kort tenisowy, miejsce do grillowania

– ścieżki spacerowe

CENA

cena katalogowa: 618 643,50 zł brutto

cena promocyjna: 556 779,15 zł brutto

cena za m²: 11 450 zł

– miejsce parkingowe naziemne: 25 000 zł

Brak prowizji | Brak podatku PCC 2%

WARUNKI ZAKUPU

– zakup bezpośrednio od dewelopera

– rynek pierwotny

– lokal gotowy do odbioru

Formy finansowania:

– gotówka

– kredyt hipoteczny

– program „Mieszkanie na raty”

– bezpłatne wsparcie doradcy kredytowego

KONTAKT

Paradigm Capital współpracuje bezpośrednio z deweloperem –

zapewniam rzetelną obsługę i bezpieczeństwo transakcji.

Halina Namenanik

języki kontaktu: polski, angielski, ukraiński

Pozostaję do Państwa dyspozycji również poza standardowymi godzinami pracy.

Ogłoszenie ma charakter informacyjny i nie stanowi oferty w rozumieniu Kodeksu cywilnego.

3-BEDROOM APARTMENT WITH BALCONY | ZAWADA, 18 KM FROM KRAKÓW

0% COMMISSION | NO 2% PCC TAX | TURNKEY | READY FOR HANDOVER | PROMOTIONAL PRICE

I present a 3-bedroom apartment with a usable area of 54.03 m² (design area 57.63 m²), located in the intimate residential development “Apartamenty na Wzgórzach” in Zawada, approx. 18 km from Kraków and 5 km from Myślenice.

An excellent option for buyers looking for a ready-to-move-in apartment near Kraków, in a quiet and green environment.

LOCATION

– Zawada near Myślenice

– Kraków – approx. 18 km

– Myślenice – approx. 5 km

– Dobczyce Lake – approx. 8 km

– schools, kindergarten, shops – a few minutes by car

APARTMENT

– design area: 57.63 m²

– usable area (after measurement): 54.03 m²

– number of rooms: 3

– floor: 2 / 2

– exposure: north-west (NW)

– condition: TURNKEY – ready to move in

Layout:

– living room with kitchenette

– two bedrooms

– bathroom with shower and toilet

– separate toilet

– hallway

Balcony: 7.10 m²

STANDARD AND ECOLOGY

– underfloor heating

– heat pump

– photovoltaic panels

– energy-efficient technology

– low maintenance costs

– building with elevator

DEVELOPMENT

– low-rise, intimate buildings

– modern architecture

– quiet, green surroundings

– outdoor parking spaces

– private forest park within the estate

– recreational areas for residents

– tennis court and barbecue area

– walking paths

PRICE

– list price: PLN 618,643.50 gross

– promotional price: PLN 556,779.15 gross

price per m²: PLN 11,450

– outdoor parking space: PLN 25,000

No commission | No 2% PCC tax

PURCHASE CONDITIONS

– purchase directly from the developer

– primary market

– apartment ready for handover

Financing options:

– cash purchase

– mortgage loan

– “Apartment in Installments” program

– free support of a mortgage advisor

CONTACT

Paradigm Capital cooperates directly with the developer –

I provide reliable service and full transaction security.

Halina Namenanik

languages: Polish, English, Ukrainian

I am also available outside standard working hours.

This listing is for informational purposes only and does not constitute an offer within the meaning of the Civil Code.

Cechy

Liczba pokoi: 3
Liczba łazienek: 1
Powierzchnia: 57,63 m²
Rok budowy: 2024
Piętra: 2
Parking (1 Miejsca parkingowe)
Klimatyzacja
Ogrzewanie (Podłogowe)

Szczegóły budynku

Numer Piętra: 2
Liczba Wind: 1

Szczegóły mieszkania

Powierzchnia Całkowita (m²): 57,63 m²
Powierzchnia Użytkowa (m²): 54,03 m²
Liczba Pokoi: 3
Liczba Łazienek: 1
Typ Kuchni: Kitchenette
Stan Nieruchomości: VeryGood
Wysokość Sufitu (cm): 250 cm

Przestrzenie zewnętrzne

Ma Balkon (7,1 m²)

Parking i magazyn

Miejsca parkingowe: 1

Dodatkowe udogodnienia i funkcje

Domofon

Informacje finansowe

Typ Rynku: Primary
Cena za m²: 9 661 zł
Typ Własności: Freehold